//Nombre del Proyecto

Proceso Constructivo de Lanzamiento de Puente Metálico Tipo Arco

TRABAJOS REALIZADOS:

  • Modelado matemático de la estructura

  • Calculo estructural del modelo matemático del puente

  • Diagrama de esfuerzos del puente

  • Proceso del cálculo del lanzamiento

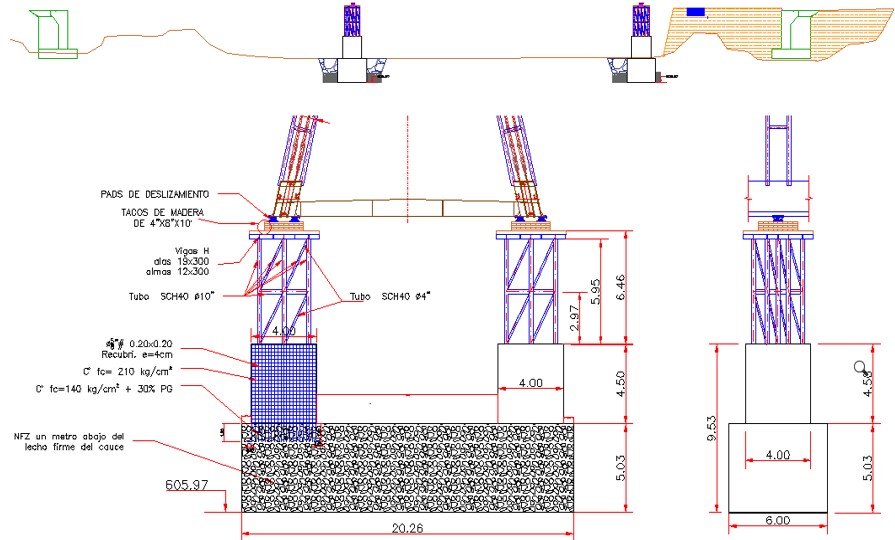
  • Dibujos del proceso del lanzamiento

  • Modelado en 3D del lanzamiento del puente

Nuestro equipo de atención al cliente está aquí para responder a tus preguntas. ¡Pregúntanos lo que necesites!